Hospitality Studio - Freja Guldsmeden

3550 Clark St, Arlington VA

Fall 2025

The challenge is to design a Guldsmeden hotel in Arlington that introduces Scandinavian culture, sustainability, and eco-consiousness- to an area dominated by chain hotels. With its proximity to Reagan Airport and a rapidly growing urban context, the project must offer travelers a distinctive, nature-connected, and community-oriented experience. The interior design should blend Nordic traditions, natural materials, and modern comfort to create an immersive, environmentally responsible stay that enriches Arlington’s evolving hospitality landscape

Design Concept

Sketches

Guest Room - Suite

Guest Room - King Room

Lobby - Reception

Spa - Cold Plunge

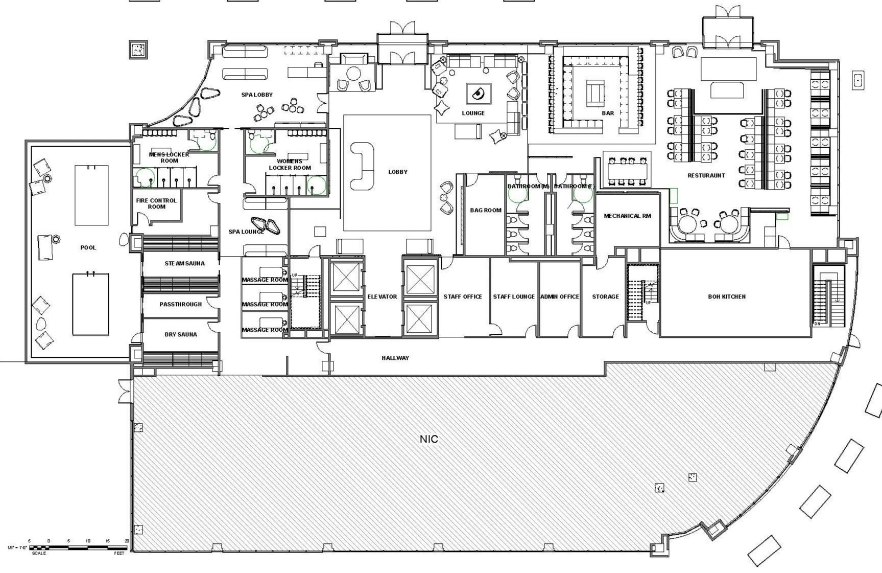
Level 1 welcomes guests with an intuitive reception area inspired by a blend of Scandinavian simplicity and Bohemian warmth. The floor features a restaurant and all-day café, including a Swedish-inspired fika spot, creating inviting social spaces for guests throughout the day. A wellness-focused spa with sauna and hot and cold plunges offers a restorative experience, establishing the floor as both a social and rejuvenating hub of the hospitality experience.

Level 1

Lobby - Entrance

Restaurant Entrance

Lobby - Reception

Cafe Seating Area

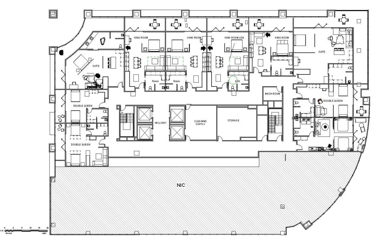
Levels 2 and above are designed to provide an extended-stay experience that blends the comfort of home with hospitality amenities. Each floor includes a mix of double queen rooms, king rooms, and suites, all featuring living areas, kitchen spaces, and adaptable sunrooms that can open into the main space to enhance daylight and connection to nature. The layout supports guests seeking a longer, more residential stay, offering an apartment-like experience within the hotel environment.

Level 2

Double Queen - Bedroom

Double Queen - Living Room

Guest Bathroom

Double Queen - Sun room

Next
Next

Workplace Studio