Workplace Studio - NEXT Office

811 West Fulton Market, Chicago, IL 60607

Fall 2024

For the NEXT Office, the design embodies the Swedish philosophy of Lagom, which promotes balance, simplicity, and functionality. The space will be crafted to enhance creativity, foster collaboration, and inspire well-being. By embracing a "just the right amount" approach, the office will blend comfort and productivity without excess or scarcity

Design Concept

Research

Research Question: Benefits of Collaboration in the workplace

“In an environment designed for collaboration, you’ll find pervasive elements of trust, honesty, positivity, and empathy within the workplace. Professionals should feel comfortable working with one another and openly communicating their perspectives”

Research Question: Benefits of Focus in the workplace

Being able to focus has a direct impact on performance. It influences how we make decisions, the quality of our work and our productivity

Link to source: Focus in the workplace

The WPI shows that focus work is much more limited where it happens and that the workplace enviornment is consistently poor at supporting it”

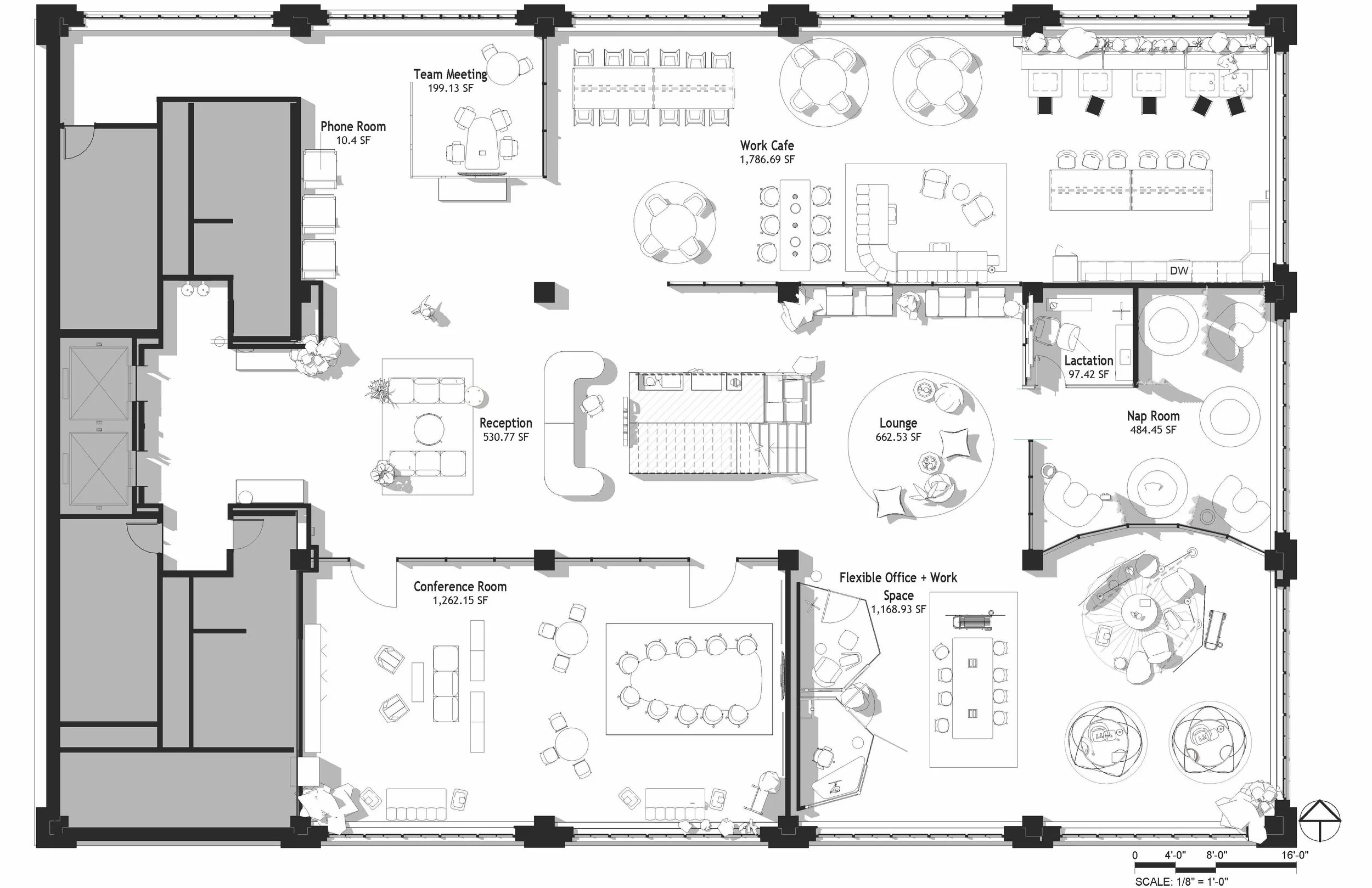
On Level 6, I intentionally separated client areas from staff workspaces to provide privacy for both and prevent clients from passing through active office zones. The floor offers flexible work areas and a spacious conference room designed for comfortable meetings and presentations. The café encourages breaks and supports a healthy work–life balance, while the nap room provides a quiet space for rest and recovery, helping everyone perform at their best.

Level 6

Work Cafe

Nap Room

Conference Room

Monumental Staircase

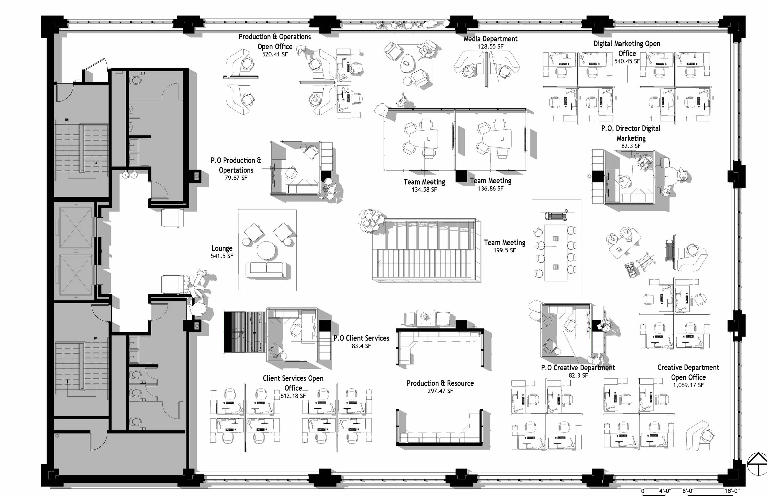
On Level 7, I designed an open office layout that maintains a sense of privacy through strategic zoning. These zones separate different sectors while still enabling smooth communication and collaboration. Individual desks provide personal workspace, while meeting rooms and communal tables support flexible and seamless teamwork.

Level 7

Break Space

Inbetween Space

Staircase

Desk Layout

Previous
Previous

Hospitality Studio

Next
Next

Health Care Studio